[UPDATE] I started this post to document the construction of the addition to the original workshop, but have changed the title to include "and updates" as I've been documenting various updates to the original workshop as well. I originally built the workshop in the late '90s, but it hit some roadblocks due to a divorce and career changes. About 2010 I started making more effort to get back to working on and in the workshop and in 2012 started on the addition. Since then I've been making a point to be able to spend more time out there. Particularly since 2015 when I started dating an artist who (nicely) demanded her own space for wood carving, clay sculpture, and other artwork. Unfortunately, she left at the end of 2021, which was another setback.
I've been meaning to do this for awhile, but the Borough forced my hand. I found out that they were updating their Zoning Ordinance and one of the "updates" would limit the size of detached structures. So I was able to get my plan approved before the new regulations went into effect.
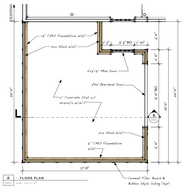
The current workshop has automotive and metalworking on the first floor and woodworking on the second floor. The new addition will have a single 9'x9' overhead door to match the two existing doors and will have a covered alcove at the existing man door with a man door into the new section too. The two sections won't be connected because I plan to keep the "dirty" activities in the new section to isolate them from the "clean" parts of the existing shop.
I was all ready to start excavating, but Sandy delayed that a bit. Hope things have dried out enough by tomorrow to start digging.
I've been meaning to do this for awhile, but the Borough forced my hand. I found out that they were updating their Zoning Ordinance and one of the "updates" would limit the size of detached structures. So I was able to get my plan approved before the new regulations went into effect.
The current workshop has automotive and metalworking on the first floor and woodworking on the second floor. The new addition will have a single 9'x9' overhead door to match the two existing doors and will have a covered alcove at the existing man door with a man door into the new section too. The two sections won't be connected because I plan to keep the "dirty" activities in the new section to isolate them from the "clean" parts of the existing shop.
I was all ready to start excavating, but Sandy delayed that a bit. Hope things have dried out enough by tomorrow to start digging.
Last edited:
