Anyone have a wiring diagram for the power mirrors on a 1998

This site may earn a commission from merchant affiliate
links, including eBay, Amazon, Skimlinks, and others.

Joined
Jun 29, 2012
Threads
21
Messages
238
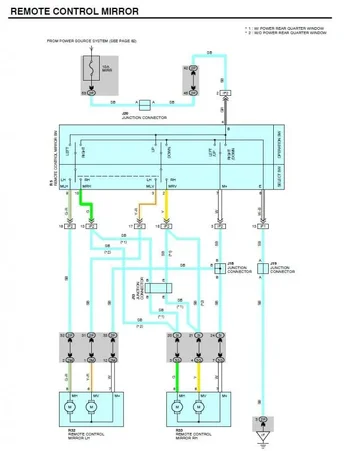
Could someone post or email me the wiring diagram for (1998) the power mirrors.

I would like close up photo of the wires going into the connector that plugs into the power mirror switch?
 
How's this?

98 mirror 1.webp

98 mirror 2.webp
98 mirror 1.webp
98 mirror 2.webp
 
Thanks. Is this the only info for the 1998. I have more (10) wires on the connector to the switch.

Toyota had to make this complicated.

The drivers side mirror only pans in and down. The passenger mirror only pans out and down.

Have two wires that are grounds until I turn on the head lights, they turn into hot's.

I cannot figure this out.
 
Back
Top Bottom