Please critique my garage plans

This site may earn a commission from merchant affiliate
links, including eBay, Amazon, Skimlinks, and others.

Joined
Mar 7, 2006
Threads
90
Messages
831
Location
Dallas, TX
I'm in the process of renovating a house in Texas, and I finally get to build the garage of my dreams (tempered by my budget). The goal is four cars, with a 2-post lift, and room to work.


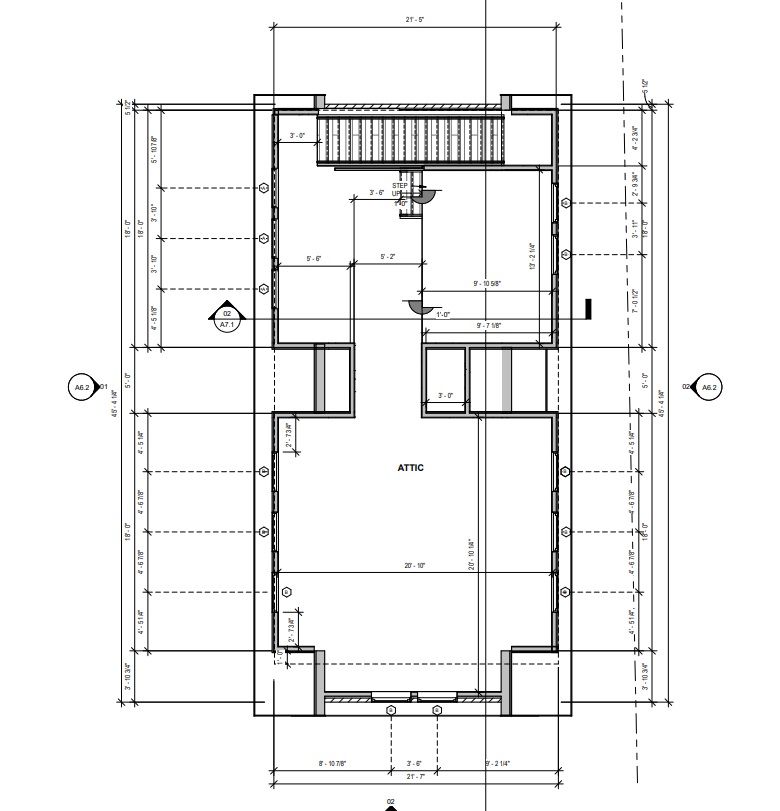
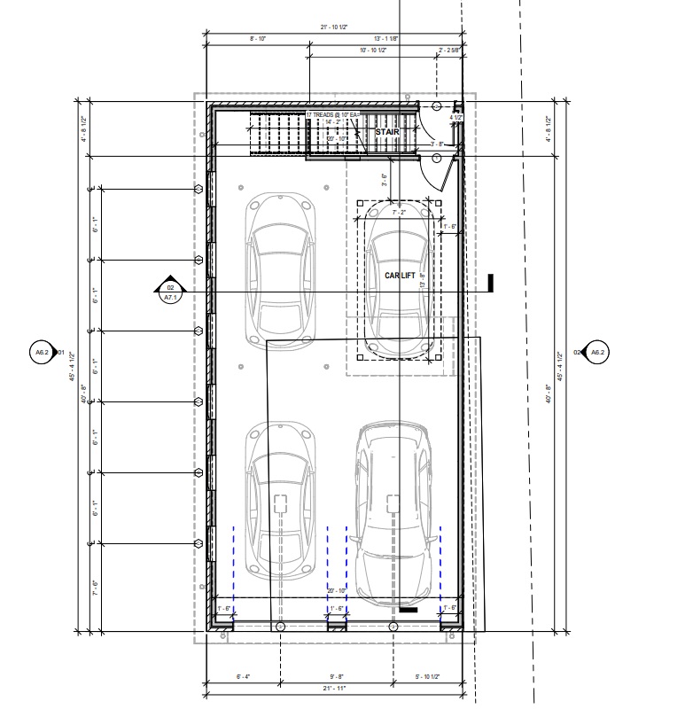
Here's the layout I have so far. Interior space is 20'10" wide by 40'8" (to back wall)

Goals for the downstairs:
- Car storage
- Room to work on the cars (minor stuff in the three other bays, more in-depth on the lift)
- Workspace (countertop, storage shelving around and above, drawers, etc.

Things I want on the first floor:
- Fridge (beers)
- Shelving (car parts)
- Counter to work on smaller stuff, guns, hi-fi, etc.
- Larger shelving for parts, wheels, etc.

Does this seem like a reasonable space? Anything I'm not thinking of? Details? Dimensions? I'm thinking of expanding it 1 foot wider and 2 feet deeper to give me some more room for activities.

Thanks in advance for your thoughts.

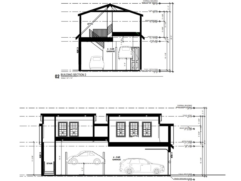
Outward appearance:

Garage_Build_11712200661.jpg


Upper floor (storage)
Garage_Overhead_2nd_Story1712200661.jpg


Main floor (grey dotted line represents raised ceiling to 12' for lift clearance
Garage_Overhead1712200661.jpg


Cutaways (raised floor is only around and above lift per the above):
Garage_Side_Cuts1712200661.jpg

__________________
 
Last edited:
Looks awesome, congrats!

I think it's a solid plan. I'm in the middle of renovating my garage - not nearly as good of a setup as yours - but here's a few things I've run into as I've been working on cramming a full workspace into a garage that I didn't build and design:

- Make sure you triple check dimensions of the lift, both width and height. I know a guy with a similarly raised ceiling but the raised portion isn't quite wide enough so the car in theory would fit fine... but the lift posts he had planned on would hit the lower portion of the ceiling. if that makes sense.
- Double check that you'll have enough room to stand underneath your car while it's up in the air. Can be a problem with cruisers or other tall vehicles.
- If you'll be working on things like axles make sure you leave enough room to the sides of the lift to be able to slide axle shafts out. Could be an issue on the passenger side.
- Don't know how many cars you have or want to have, but maybe you could have the entire half of the garage by the lift have 12' ceilings, then put a 4 post lift on the left side by the 2 post.

Other than that, looks killer. Here are a few other random things I have to figure out:

- Do you plan on any large pieces of equipment like a welder, air compressor, drill press, hydraulic press etc.? Make sure to include them in the floor plan.
- Make sure to incorporate 220 outlets for equipment like that
- I wish I had a drain in my garage floor
- I wish I had a hose faucet and a sink in my garage
- Make a plan for lighting - a large portion of my garage ceiling is covered up when my garage doors are open. So on a nice summer night I would need to choose between leaving doors open and having a few lights covered up, or close the doors to get all the light.
- Do you have a plan for air conditioning or heat? I need to figure that out as well. I'm looking at combination AC/Heater units, or just an infrared heater.
 
Looks good, but I would go to 24' wide.
Why
well you will always put stuff in that space between the garage door opening and the wall. first it will be just some windshield washer fluid and then it grows, then comes a shelf and in short order you cant get the car door open.
Also it your working under the dash or just inside the cab. you want the door wide open.

Consider where your work benches will be and sketch them in too.
I shorted myself on my pole barn and wish I had just a few more feet to be able to walk around my treasures.
 
I agree with @Bob Morazes. If you really store 4 cars in there then you won't have any room for equipment or to work on said cars. I don't even see where you can put a work bench. I have 4' between the outside of the roll-up doors and the walls and that gives me all the space I need for welders, compressors, work benches, etc. 1' 6" is very tight.

Don't get me wrong, for use as just a 4 car garage it is very nice and will work just fine. But you are adding a lift so I assume you plan on doing more than oil changes.

You might also consider raising the entire ground floor to 12'. I'm not sure that would cost much more than the complicated framing that you have going on with the split level second floor arrangement.
 
Last edited:
It looks small to me. Barely enuff room for the lift posts. A basic 2 car shop should be around 24x24. I would try for 25 or 30 x40.
 
I think it looks good and is an efficient use of a small space, but as others have said, definitely make at least one side (non window side) wider to accommodate storage, cabinets, and working space. Even space for the lift column on that side will be tight. The windows look good, but will prevent you from using any of the wall space. What size are the garage doors? If the column between the single doors is not critical for load/shear, can you do a single large door?

For ceilings, it is probably going to be cheaper and easier to make the shop floor ceiling all the same height, at least 12'. You could then build in some ceiling mounted storage.

Are you going to bring in water/sewer? Small bathroom upstairs with sink downstairs would be nice. Mini split system would be perfect for HVAC needs.
 
Can you sell two cars, put one 12x10 door in the end and call it a 2 car garage?

That is extremely cramped for more than 2 small vehicles.

I have a 2 post and tools in a 24' wide by 30' deep building. That is barely enough room for just my hand tools, one 3ft x 8ft workbench and one vehicle.
 
- Do you plan on any large pieces of equipment like a welder, air compressor, drill press, hydraulic press etc.? Make sure to include them in the floor plan.

As others have said, it makes for a nice garage if all you're doing is storing cars in it, but I'm not seeing workshop space.

Start drawing in the workbench, shelves, and other equipment on the plan and you'll quickly see how tight it is.

You might also consider raising the entire ground floor to 12'. I'm not sure that would cost much more than the complicated framing that you have going on with the split level second floor arrangement.

I'd agree with this. From a framing standpoint, it would be easier to have it all one level and the added ceiling height is definitely a benefit. I built my shop twenty-five years ago - before the internet really took off - and my biggest regret is not making the first floor taller. At the time, I figured a lift in a home shop was ridiculous. Now it is pretty much standard.

If you split the space, from a framing standpoint it would be easier to have the front or back at 12' high rather than left or right side 12' high. That would make the second floor up and down a bit odd. So just make ti all 12' high.
 
I don’t know why I just found this but I did use 18’ door width and 10’ on a perpendicular wall for easy pull in/pull out all in the same forward movement. The town was the limiting factor without farm assessments or going for a variance despite my acreage and ZERO neighbors. At 24x47…I could EASILY have done 30x50 or more
 
I have 40 X 45 for four cars. I could shoe horn more in there but could not work on them. Parts storage and a fab area and work bench are missing from yours. No reason to have a lift unless it is just for storage without a work area.
 
Back
Top Bottom