Quick question about AHC ride with extra weight

This site may earn a commission from merchant affiliate
links, including eBay, Amazon, Skimlinks, and others.

Joined
Sep 24, 2020
Threads
3
Messages
68
Location
NE. OHIO
Hey guys, I have a 2006 land cruiser and I like the ride on it for the most part but I feel I may be missing out on something due to having AHC problems. Everyone says the land cruisers ride like clouds, but its not all THAT smooth to me. It rides pretty good, but only slightly better than my 2003 stock 4runner that I traded for this 100 series.
My 100 won't drop to low or lift up to high. This isn't a huge issue to me if its not causing any deficit in the ride. But, I had never ridden in a land cruiser prior to buying this one and I have never ridden in any other land cruiser so I don't have anything to compare it to.

After starting my car and driving for a few seconds, the AHC OFF light flashes constantly. I had this checked by a Toyota dealership and they said it was all of the height sensors. Does this sound right? That ALL of the sensors are bad? Or is it a fluke?

I'd love to get this thing working 100%, but I can deal with non-working AHC for now.

My main question is about riding with passengers in the 2nd row seats. When I have passengers in the second row, the ride gets very bad and I feel bad for the people in the back. It feels like the suspension is bottoming out with no more than 500 lbs in the back seat. This can't be right as I know the towing capacity is way more than that and I know that this thing is rated for more than just a measly 500lbs of human flesh bags in the back. Its actually more like 400lbs. Could this rough ride be due to a failing AHC system? It doesn't ride bad with myself and another in the front seats.

Also, does the ride stiffness control knob (next to the AHC position button) work if the AHC height sensors are bad?

I'd like to mention also that my AHC height control has never worked since I bought this about 7 months ago.
 
@uHu
For future reference in case anybody else is reading this.

1626723127249.webp
 
Ok. Have you ever seen a fluid level change in the reservoir above the AHC pump since you bought the rig?
 
Ok. Have you ever seen a fluid level change in the reservoir above the AHC pump since you bought the rig?
No. I don't see any movement whatsoever in the fluid. Not even sloshing around like there is something moving fluid.
 
I just did a quick check to see what my voltages were for the battery and alternator. Battery is reading fine at 12.84V but the alternator is weak at 13.50V. Could that be causing issues like this?
 
Ok. I'd guess next up is confirming the appropriate signals/voltages are showing up at the power connector to the AHC motor.
 
I checked the Voltage going to the plug for the AHC motor and I'm getting no significant voltage. Specifically 0.064V
 
Last edited:
I wish I was an automotive electrician. But I'm not, I'm a fireman. Electricity scares the hell out me. I don't know if I can just hook up 12V to the motor or not. Does it work that way?
 
Krikee. If you just hotwire something from the battery to all AHC motor +12V inputs, do things spring to life like Jordan popping out of the cake in Under Siege?

3jDOuS.gif


Sorry, I don't have any wiring diagrams in front of me. Just suggesting troubleshooting steps I would try.
 
I wish I was an automotive electrician. But I'm not, I'm a fireman. Electricity scares the hell out me. I don't know if I can just hook up 12V to the motor or not. Does it work that way?
Hopefully someone with the EWD can chime in on the AHC motor connections.
 
I wish I was an automotive electrician. But I'm not, I'm a fireman. Electricity scares the hell out me. I don't know if I can just hook up 12V to the motor or not. Does it work that way?
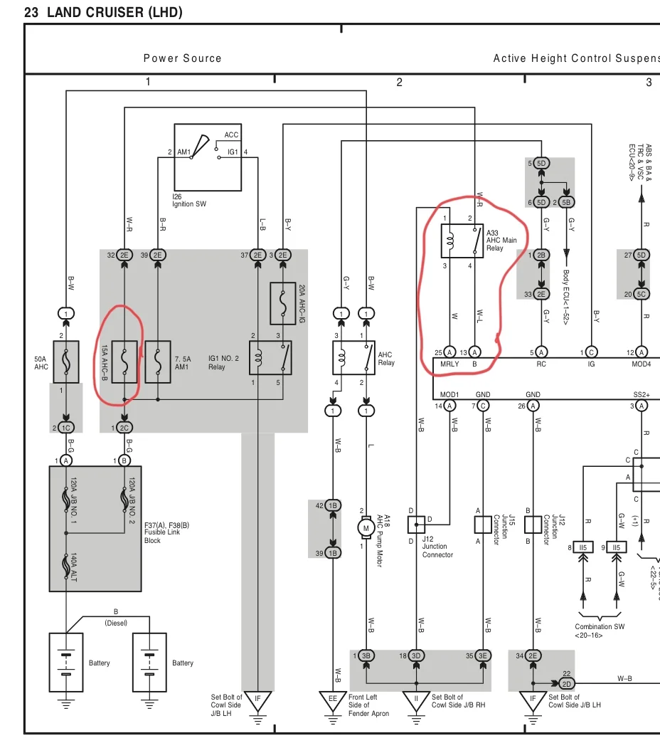
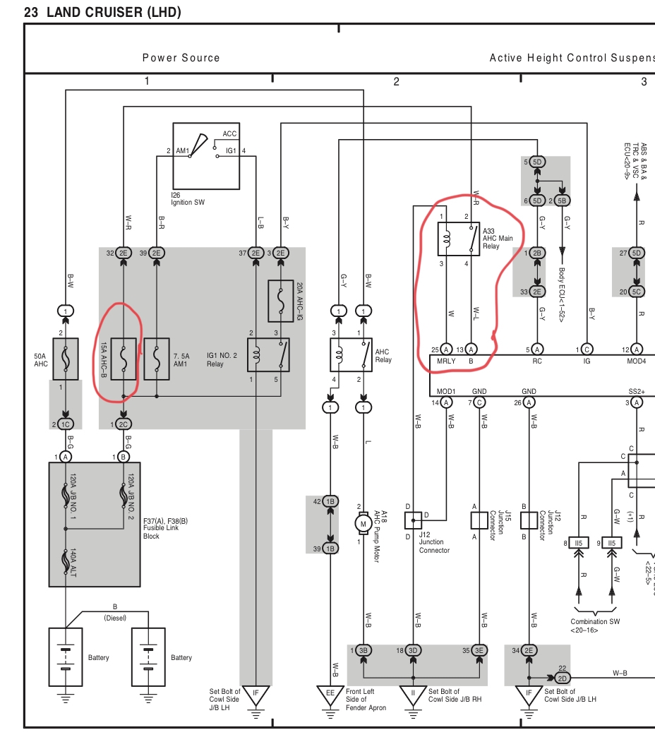
Yes it works that way. See attached troubleshooting pages DI-257 to DI-260 from LC100 FSM and diagram extracted below from that source. As with any lead taken from the battery, take care not to touch them together. This is not difficult to do but if uncomfortable visit an auto electrician.

AHC Pump and Motor Connections.jpg


"I checked the Voltage going to the plug for the AHC motor and I'm getting no significant voltage. Specifically 0.064V"

Voltage will be seen here only when the ECU is telling the Pump to run. At the moment, it is unclear whether that signal is being sent by the ECU to the Pump due to a problem elsewhere causing a fault or a conflict. It is important to know whether the Pump is healthy, meaning that it can run when directly connected to a 12 volt source.

"Relay and fuse in main box checked good"

As well as fuses and relays in the engine bay, also check this fuse in behind the left side cover in the US driver's footwell:

LC100 AHC IG Fuse.jpg
 

Attachments

Last edited:
I will have to try the 12V direct to the pump tomorrow if I get time. It's getting too dark here to see into the engine bay. But I checked the fuses in the driver foot well. Just for general information, my foot well fuse box looks a little different than the one in the posted diagram. Mine has many more fuses than the posted diagram. But, I used the picture on the cover of the fuse box and checked both fuses labeled as AHC. Both looked good. Clean and visually intact.
 
This might be jumping a little far ahead, but going back to my sensor readings conundrum.... if I do get everything straightened out as far as electrical goes, and supposing the rest of the system is good to go, wouldn't one of the sensors throw a fault code due to one reading the reverse of what it should be? The vehicle would try to correct itself and, as it lifts, one sensor reading would increase and the other would decrease. Wouldn't that cause the computer to trip a fault because it's unable to correct itself? Or would the AHC, in all its glory, twist the chassis like a pretzel?
 
This might be jumping a little far ahead, but going back to my sensor readings conundrum.... if I do get everything straightened out as far as electrical goes, and supposing the rest of the system is good to go, wouldn't one of the sensors throw a fault code due to one reading the reverse of what it should be? The vehicle would try to correct itself and, as it lifts, one sensor reading would increase and the other would decrease. Wouldn't that cause the computer to trip a fault because it's unable to correct itself? Or would the AHC, in all its glory, twist the chassis like a pretzel?

Hi @ParaJake,

Good question!!

The answer is “No – your pretzel is safe!!”

1. A fault code (DTC) will not arise due to the reading on one Sensor being the reverse of what it should be UNLESS the reading (which actually is a voltage signal received by the ECU) is outside the voltage range which triggers a DTC.

2. The vehicle cannot correct itself side to side as it lifts. The LC100/LX470 AHC system is a two-channel system -- Front and Rear -- which is only capable of raising or lowering the Front and the Rear. It is not a “four channel system”. It is not capable of raising or lowering at each of the four wheels individually or independently.

3. When the steering is straight ahead or when the vehicle is at rest, AHC Front Right and AHC Front Left are connected hydraulically (the Gate Valve between them is open) and so they are at the same pressure. This means that the Front Left and Front Right will raise or lower by the same amount. It is the same at the Rear. (The TEMS system causes the Gate Valve to close during turns at speed to increase roll resistance – this has nothing to do with raising and lowering the vehicle).

4. Raising and lowering the vehicle is regulated by the ECU controlling the Front and Rear Levelling Valves and the Pump when required -- as well as the Height Control Accumulator in defined circumstances.

5. The ECU will average the signals from the two Front Sensors provided that they are within the accepted range, and provided also that the signal from the single Rear Sensor is within the accepted range.

By the way, please do not be dazzled by the hydraulics and the way they are controlled in the AHC/TEMS system. It is all far less complicated than the pump arrangements on a Fire Truck or the Hydrant and Pump System in a Building

The LC100/LX470 AHC system is a “two-channel system” – Front and Rear. It is not a “four-channel system”. It is unable to raise or lower all four wheels individually. It raises and lowers the Front and Rear of the vehicle.

The Electronic Control Unit (ECU) which resides deep under the dashboard has no idea whether the Height Control Sensors are upside down or fitted to the wrong side or are in good shape or are degraded. The only ‘information’ the ECU receives is the voltage signal from each Sensor.

The only time the ECU will record a DTC from a Height Control Sensor is when this voltage signal is less than 0.3 volts, or, more than 4.7 volts – for longer than 1 second and at a speed greater than 5 mph. This is the defined “DTC Detecting Condition” set out in the FSM and which is part of the system design.

DTC AHC Height Control Sensor.jpg


If the Sensor is wrongly fitted, or incorrectly adjusted, or damaged or degraded in some way but still sends a voltage signal to ECU and which is inside the acceptable range, then the ECU will not record a DTC.

This is a limitation of this 25+ year old system design. It is why I have written in earlier posts that the presence of a DTC certainly indicates a fault but the absence of a DTC does not guarantee that all is well.

It is also why I emphasise electrical testing of the Sensors as set out in FSM -- 4.5 volts applied as instructed and looking for a smooth sweep – no gaps or jumps – in the output signal.

A visual inspection and clean-up is good – but it is not enough if reliability is the goal. Tiny voltage differences are involved and imperfections not visible to the naked eye may affect the output voltage.

A damaged or degraded Sensor is quite capable of sending a voltage signal within the range accepted by ECU – so no DTC is recorded -- but it is the wrong voltage for the height of the vehicle. This is why Height Control Sensors can be such a headache!

Wait – there is more!

The ECU must figure out what to do to auto-adjust the height of the vehicle and to get the vehicle to the height matching the selector switch on the centre console – either “LO”, “N” or “HI”. To do this it will cause the vehicle to be raised or lowered until the voltages received from the Height Control Sensors match those which have been set in the ECU firmware for the selected Height. These voltages are approximately*:

LO: 0.45 volts
N : 2.25 volts
HI : 4.05 volts

* approximately, because there is some tolerance, as mentioned by @suprarx7nut and @uHu in previous posts from their experiences -- translated into Height Control Sensor readings in inches or millimetres on Techstream or other scanner.

If the Sensor signals individually are within the acceptable range but are widely different, the ECU will not be able to resolve the height of the vehicle.

Instead, the ECU will put the system into the ‘fail safe’ mode -- where it will remain until the condition is corrected.

Hope this helps.

Late Edit: Previously referenced documents are attached for convenience:
  • The "General Description" document is extracted from the FSM -- it is very readable and helps in gaining a general understanding of the LC100/LX470 AHC and TEMS systems and how they work,
  • The "Height Control Troubleshooting" document also is extracted from the FSM -- the Electrical Wiring Diagram (EWD) can be a bit daunting if that is not your thing -- much can be gained just by reading the words of explanation and looking at the parts diagrams. The pics in this post are taken from this document.

AHC Height Control Sensor Voltages.jpg
 

Attachments

Last edited:
@IndroCruise
That was a great explanation. Once again, I appreciate all the knowledge! Today I will attempt to get reading on the actual sensors through their sweep and make sure the voltage change is smooth and within normal limits for the numbers you posted. I'll also connect the battery directly to the AHC pump to make sure that it actually works.

When connecting the pump directly to the battery, am I just listening for the pump to kick on? Or should I attempt to raise and lower the vehicle with the height selection while the pump is receiving 12V direct?

And, since I'm going to be in there anyway, should I attempt to do the procedure described previously by bridging the two connections in the "diagnostic" plug above the right wheel well? (I think this was the manual active test)
 
I didn't read this whole thread, but I once had a problem with my AHC not working and the lights just flashing when I tried to go up or down. The problem ended up being the wires going from the body to the lower tailgate had gotten pinched and one was broken so the ecu thought a door was open and wouldnt work.
 
@IndroCruise
That was a great explanation. Once again, I appreciate all the knowledge! Today I will attempt to get reading on the actual sensors through their sweep and make sure the voltage change is smooth and within normal limits for the numbers you posted. I'll also connect the battery directly to the AHC pump to make sure that it actually works.

When connecting the pump directly to the battery, am I just listening for the pump to kick on? Or should I attempt to raise and lower the vehicle with the height selection while the pump is receiving 12V direct?

And, since I'm going to be in there anyway, should I attempt to do the procedure described previously by bridging the two connections in the "diagnostic" plug above the right wheel well? (I think this was the manual active test)

Before doing anything else, may I suggest doing the checks suggested by @Rebus Knebus in his Posts #50 and #76 in this thread

I notice that @Rebus Knebus has provided a better diagram of the electrics in the footwell than I did. Apologies -- maybe mine was an earlier version or a Right Hand Drive version.

After that, and depending what you find, I would suggest that the manual “Active Test” procedure, independent of Techstream, as described back at my Post #41 in this thread. (To clarify: Do this while everything is in its normal place, not when the battery is directly connected to the pump).

If all of that goes nowhere, then I would be inclined to see whether the AHC Pump will operate at all, when directly connected to a 12 volt battery.

As you have mentioned that auto electrics are not your thing and as it seems you have not done this kind of thing previously, take great care.

When manipulating the leads from the battery directly onto the pins revealed after you have removed the plug from the motor, it is important to avoid touching anything else with the leads.

If the leads are touched together or if the wrong one touches the body of the motor, pump or elsewhere on the vehicle, there will be a big, unwanted flash or spark. It is only 12 volts but there can be a lot of current (amps) when there is a ‘short’ across a 12 volt battery or a direct, no-resistance connection to ‘earth’ (which is the vehicle). There is nowhere near enough voltage to hurt you but such a happening will give you one hell of fright and you don’t want any hot spark etc flying into an eye.

So do a few practical, protective preparations:
  • be in a well-ventilated place with no fuel vapours floating around,
  • wear eye protection,
  • wrap some plastic around the socket on the motor so there is no chance of touching any metal other than the pins on the pump motor with the tips of the leads from the battery, and,
  • carefully follow the FSM connection instructions provided previously at Post #71 in this thread.
Initially, just touch the pins with the battery leads very briefly.

By the way, if the above explanation makes you personally uncomfortable, then DON’T DO IT. Find somebody who is familiar with these things and enlist their help. Or, simply say so and the rest of us in the Forum can come up with another way forward.

The purpose is find out
  • whether the motor and pump will operate – and whether it does so freely, or,
  • whether it starts or just makes a click but then stops (like a jammed electric drill) -- this may indicate a jammed or completely blocked pump, or,
  • whether it struggles slowly (like an overloaded electric drill) – this which may indicate a partial blockage of old fluid turned to jelly or other debris in the pump, most likely in the tiny strainers which protect the pump.
Anyway, go gently, don’t overdo it.

The outcome will suggest whether there is a problem with the pump. Then that can be problem can be addressed.

A problem with the motor is possible but that would be very unusual.

If the motor and pump seem healthy and willing to operate when directly connected to the battery, then the next step is to discover why they will not do so in the vehicle with all the normal connections in place.
 
Before doing anything else, may I suggest doing the checks suggested by @Rebus Knebus in his Posts #50 and #76 in this thread

I notice that @Rebus Knebus has provided a better diagram of the electrics in the footwell than I did. Apologies -- maybe mine was an earlier version or a Right Hand Drive version.

After that, and depending what you find, I would suggest that the manual “Active Test” procedure, independent of Techstream, as described back at my Post #41 in this thread. (To clarify: Do this while everything is in its normal place, not when the battery is directly connected to the pump).

If all of that goes nowhere, then I would be inclined to see whether the AHC Pump will operate at all, when directly connected to a 12 volt battery.

As you have mentioned that auto electrics are not your thing and as it seems you have not done this kind of thing previously, take great care.

When manipulating the leads from the battery directly onto the pins revealed after you have removed the plug from the motor, it is important to avoid touching anything else with the leads.

If the leads are touched together or if the wrong one touches the body of the motor, pump or elsewhere on the vehicle, there will be a big, unwanted flash or spark. It is only 12 volts but there can be a lot of current (amps) when there is a ‘short’ across a 12 volt battery or a direct, no-resistance connection to ‘earth’ (which is the vehicle). There is nowhere near enough voltage to hurt you but such a happening will give you one hell of fright and you don’t want any hot spark etc flying into an eye.

So do a few practical, protective preparations:
  • be in a well-ventilated place with no fuel vapours floating around,
  • wear eye protection,
  • wrap some plastic around the socket on the motor so there is no chance of touching any metal other than the pins on the pump motor with the tips of the leads from the battery, and,
  • carefully follow the FSM connection instructions provided previously at Post #71 in this thread.
Initially, just touch the pins with the battery leads very briefly.

By the way, if the above explanation makes you personally uncomfortable, then DON’T DO IT. Find somebody who is familiar with these things and enlist their help. Or, simply say so and the rest of us in the Forum can come up with another way forward.

The purpose is find out
  • whether the motor and pump will operate – and whether it does so freely, or,
  • whether it starts or just makes a click but then stops (like a jammed electric drill) -- this may indicate a jammed or completely blocked pump, or,
  • whether it struggles slowly (like an overloaded electric drill) – this which may indicate a partial blockage of old fluid turned to jelly or other debris in the pump, most likely in the tiny strainers which protect the pump.
Anyway, go gently, don’t overdo it.

The outcome will suggest whether there is a problem with the pump. Then that can be problem can be addressed.

A problem with the motor is possible but that would be very unusual.

If the motor and pump seem healthy and willing to operate when directly connected to the battery, then the next step is to discover why they will not do so in the vehicle with all the normal connections in place.
I will try this and document my findings as soon as I can. Much appreciated, everybody
 

Users who are viewing this thread

Back
Top Bottom