Hey everyone,
The 12V Power Outlet which is below the cigarette lighter on my LC200 has never worked since I got the car. I have done a lot of research on this forum and other places on the internet but can't find any answers. So I got a chance to open the console today and check all the components to see what's wrong with it:
- The fuse is fine (Fuse No. 26, 15a)
- The fusible link behind the port itself is fine. I hooked it up to the connector for the cigarette lighter and it worked fine.
- The cig. lighter port (12v) works fine
- The 115v outlet in the rear works fine
- Just to be sure I changed the fuse and hooked up another power outlet and it still didn't work.
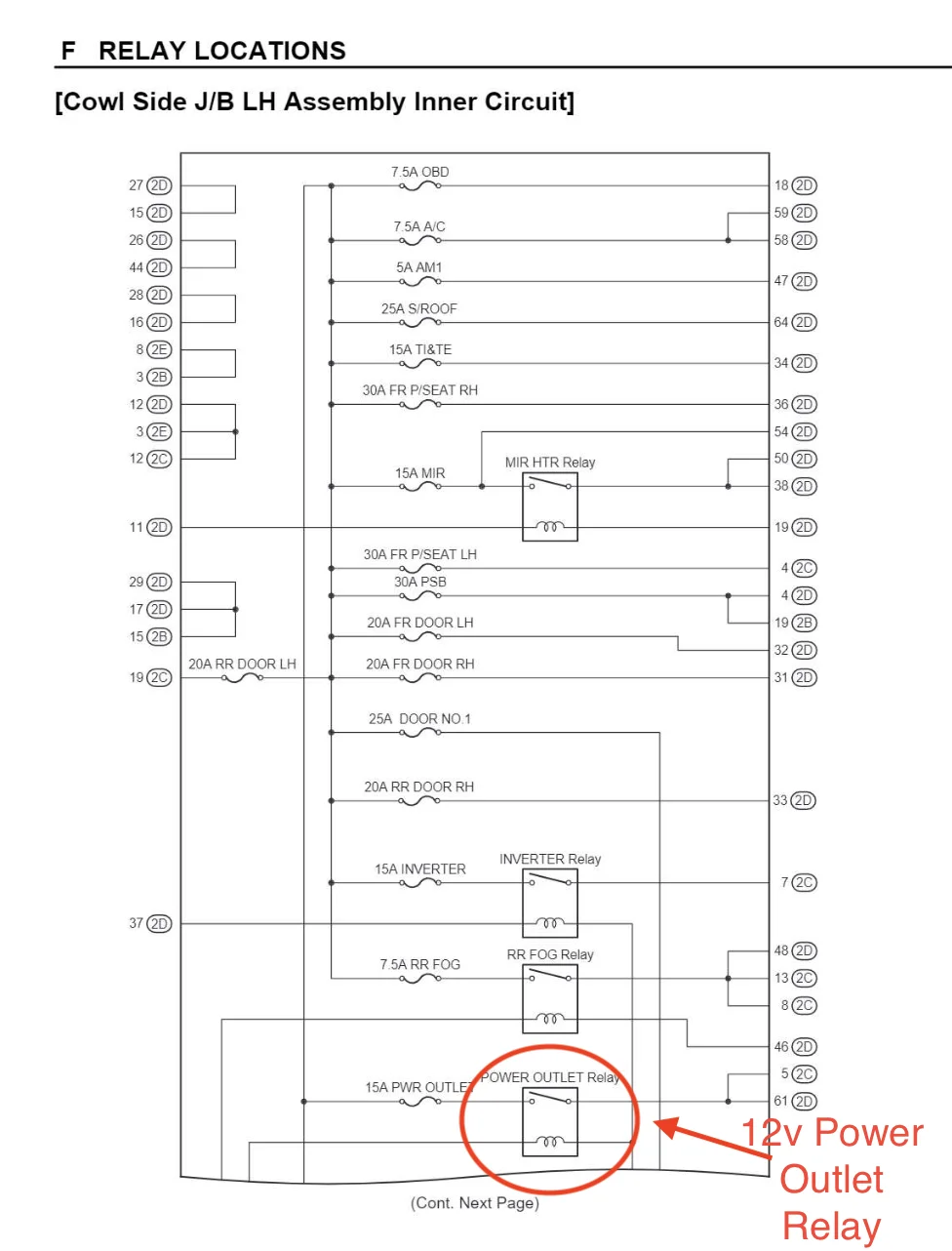
I checked the wiring diagram and realized that there is a relay in the main body ecu (cowl side l/h junction box). I found this in the wiring diagram of the inner assembly of the junction box (pic below).
Since the fuse is fine, and the port is also fine I suspect that the relay is the culprit.
Does anyone have experience fixing this? Could the problem something that I am missing and not the relay?
Does anyone know if I take out the junction box, will I be able to open it and replace the relay?
I appreciate your help in advance.
Wiring diagram of the 12v power outlet:
Location of the main body ecu (cowl side LH junction box):
Wiring diagram of the inner circuit of main body ECU:
The 12V Power Outlet which is below the cigarette lighter on my LC200 has never worked since I got the car. I have done a lot of research on this forum and other places on the internet but can't find any answers. So I got a chance to open the console today and check all the components to see what's wrong with it:
- The fuse is fine (Fuse No. 26, 15a)
- The fusible link behind the port itself is fine. I hooked it up to the connector for the cigarette lighter and it worked fine.
- The cig. lighter port (12v) works fine
- The 115v outlet in the rear works fine
- Just to be sure I changed the fuse and hooked up another power outlet and it still didn't work.
I checked the wiring diagram and realized that there is a relay in the main body ecu (cowl side l/h junction box). I found this in the wiring diagram of the inner assembly of the junction box (pic below).
Since the fuse is fine, and the port is also fine I suspect that the relay is the culprit.
Does anyone have experience fixing this? Could the problem something that I am missing and not the relay?
Does anyone know if I take out the junction box, will I be able to open it and replace the relay?
I appreciate your help in advance.
Wiring diagram of the 12v power outlet:
Location of the main body ecu (cowl side LH junction box):
Wiring diagram of the inner circuit of main body ECU: