Just want to share this here. Matt I hope you don't mind. This is burried in Matt's LV build thread and there may be other people that are interested in this.
https://forum.ih8mud.com/showpost.php?p=473987&postcount=111
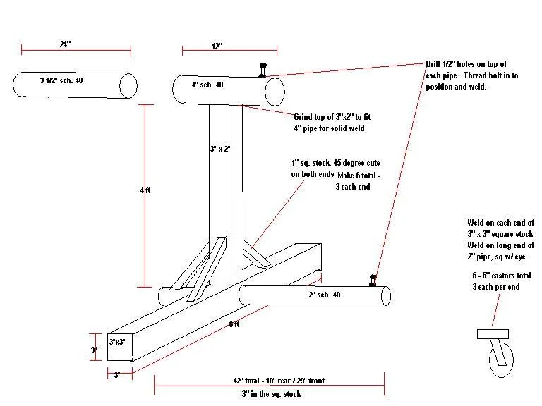
Here are the directions and the finished results with a LV body on it. The instructions are very straight forward and simple to execute. The reason I post this is because it has been very helpful with a rotissery I'm building using his Blueprint.
Thanks Matt!
https://forum.ih8mud.com/showpost.php?p=473987&postcount=111
Here are the directions and the finished results with a LV body on it. The instructions are very straight forward and simple to execute. The reason I post this is because it has been very helpful with a rotissery I'm building using his Blueprint.
Thanks Matt!


